NOM : ........................
Prénom : ....................
Classe : 1PE
Etude Technique d’une
usine Agro-alimentaire
NOM : ........................
Prénom : ....................
Classe : 1PE
Etude Technique d’une
usine Agro-alimentaire
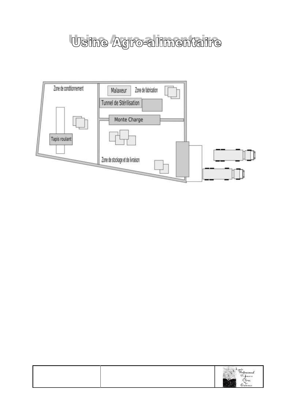
Les TP suivants sont des parties supplémentaires de l’usine agroalimentaire (seconde)
Les thèmes abordés sont :
- Le tapis roulant
- le malaxeur
- Le tunnel de stérilisation
- Le monte charge
NOM : ........................
Prénom : ....................
Classe : 1PE
Etude Technique d’une
usine Agro-alimentaire
-
IMPLANTATION DE LA PLATINE
NOM : ........................
Prénom : ....................
Classe : 1PE
Etude Technique d’une
usine Agro-alimentaire
NOM : ........................
Prénom : ....................
Classe : 1PE
Etude Technique d’une
usine Agro-alimentaire
Les cartons remplis arrivent sur le tapis 2,
Une pompe de colle ferme les cartons (moteur 2)
Et le vérin maintient le carton fermé (partie
pneumatique non étudiée)
Le Tapis repart 10s après.
On vous donne le schéma de commande et puissance et l'implantation du matériel.
KA1
BORNIER X1
H2
S1
S2
VERS MOTEURS
H1
KM2
T1
KM1
F1
S3
F2
X2
Q3
Q1 Q2
Q4
S4
S5
Le vérin
Distributeur pneumatique
On vous demande de réaliser les connections électriques
1 / 25 100%
La catégorie de ce document est-elle correcte?
Merci pour votre participation!

Faire une suggestion

Avez-vous trouvé des erreurs dans l'interface ou les textes ? Ou savez-vous comment améliorer l'interface utilisateur de StudyLib ? N'hésitez pas à envoyer vos suggestions. C'est très important pour nous!