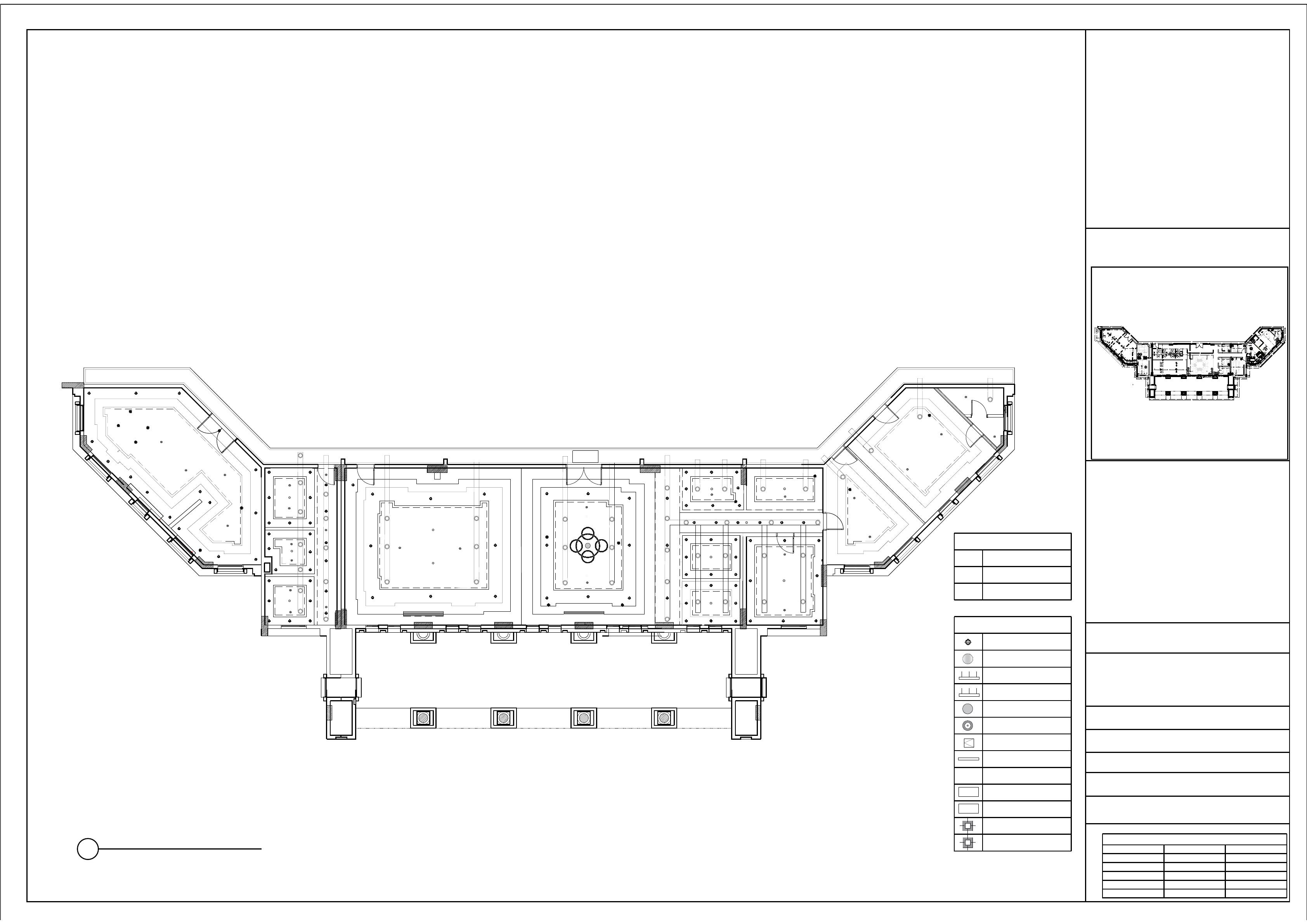
Reflective Ceiling Plan | Interior Design Project

Telechargé par ryugbedourorou
253142
90000
203087
140000
support printing area
Meeting Room
MANAGER assistant
PANTRY coffee bar
WORKING STAITION
215.4
REF.
120.0 544.1
222.2 199.4 200.7
295.9 98.0
32.0 20.0
65.2 98.0 804.5 242.7 199.4 290.2 485.0 15.0 425.9
52.8 99.0 223.5
98.0
149.0
544.1 60.0
20.0337.5
76.1
185.5
158.1
140.0
158.1
180.0
81.6
81.6180.0
41.035.0
270.4
19.640.0
325.035.0
209.5
20.0
106.0
20.0
189.5
20.0
160.0300.0140.0300.0140.0300.0140.0300.0140.0300.0160.0
20.0 189.5
20.0
106.0
20.0
209.5
35.0 73.4 138.0 76.0
35.0
60.8 270.0
81.6 180.0
41.0 37.6
81.6
180.0
158.1
140.0
158.1
180.0
65.0
16.6
979.3
330.8
357.4
565.0
2379.6
565.0
360.0
337.5
979.3
357.5
604.1
621.9
3071.7
622.3
664.1
30.0
35.240.7
180.081.6
367.3
230.4 190.0 117.2
186.6138.8
94.2
84.6
77.9
107.1
182.3
87.7
157.4 245.7
59.7
237.2
182.5
216.3 108.1
237.574.4
75.043.475.062.730.1
33.1 49.3
61.6
87.6
76.479.886.028.0
107.7
79.8 90.0 79.8 5.615.0
75.0166.9
38.8 85.6 79.7 65.9
24.4
164.276.5
110.2
860.0
238.2 401.3 195.9 132.3
141.1243.139.7
40.9 197.4 155.6 45.0 195.3 156.0 45.2 132.3
76.4257.886.9
45.7 368.1 65.5 368.1 104.9
732.1
410.2339.7110.1
149.0 404.5 178.9
129.7 166.9 24.9
178.948.6
52.1 164.2 203.7
28.9165.333.4
117.1 166.9 32.4
102.381.452.4
110.4 166.9 39.1
99.481.458.6
31.9
415.638.2
76.6 125.1 158.3 60.0
72.4
182.3
34.595.0
187.8
113.7 84.7
191.1
92.2
21.6
26.2
184.5
210.8
177.9
306.5 88.2
206.8
175.7
162.6
197.6
24.9
68.5 259.7
271.9
121.0 189.8 53.1
72.572.977.2
23.2
65.3
253142
90000 203087 140000
SD
SD
SD
SD
SD
SD
SD
SD
CEILING FINISH
CF-01
CF-02
LEGENDS
WHITE PAINT
GRAY PAINT
CF-03 DARK GRAY PAINT
SPOT LIGHT
PENDANT LIGHT
SUPPLY SLOT DIFFUSER
RETURN SLOT DIFFUSER
SMOKE DETECTOR
WATER SPRINKLER
ACCESS PANEL
TRACK LIGHT
EMERGENCY EXIT
EXIT SIGN
EMERGENCY LIGHT
SUPPLY AIR DIFFUSER
RETURN AIR DIFFUSER
EXIT
E L
S
R
EXIT
Course instructor Dr Nadia Al Badri
Course NO 0705312 REFLECTIVE CEILING PLAN
Student ID U21200694
UNIVERSITY OF SHARJAH - INTERIOR DESIGN
Student Name LATIFA ADEL
Revision schedule
Checked by
Dr Nadia Al Badri
Dr Nadia Al Badri
Dr Nadia Al Badri
Dr Nadia Al Badri
Dr Nadia Al Badri
Modified by
LATIFA ADEL
LATIFA ADEL
LATIFA ADEL
LATIFA ADEL
LATIFA ADEL
Date
GENERAL NOTES
1- ALL MEASUREMENTS IN MM
2. ALL WORK SHALL COMPLY
WITH ALL LOCALBUILDING
CODES, LAWS, ORDINANCES,
RULES AND REGULATIONS OF
THE PUBLIC AUTHORITIES
COVERING THE WORK.
3. DO NOT SCALE DRAWING
KEY PLAN:
REFLECTIVE CEILING PLAN
1:12
2
1 / 1 100%
La catégorie de ce document est-elle correcte?
Merci pour votre participation!

Faire une suggestion

Avez-vous trouvé des erreurs dans l'interface ou les textes ? Ou savez-vous comment améliorer l'interface utilisateur de StudyLib ? N'hésitez pas à envoyer vos suggestions. C'est très important pour nous!